大横厅,你何时才能在南京入流
扫描到手机,新闻随时看
扫一扫,用手机看文章
更加方便分享给朋友

本期《房叔说楼》,我们来说一说曾经在南京市场“最不受待见”的大横厅。以及这座城市的买房思维转变后,可能诞生的横厅时代。
一
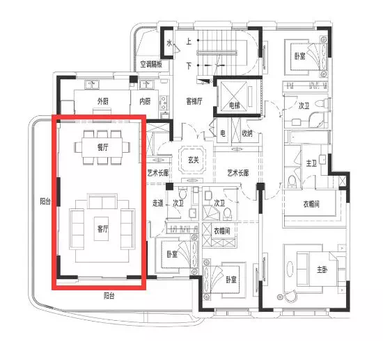
横厅,顾名思义。就是餐厅、客厅、甚至包括书房一字排开的布局,“形成超大横向开间的厅”。
比较全面的名词解释是:横厅是指客厅和餐厅等都在同一采光面上,开间大于进深,一般适用于面积段较大的改善户型和豪宅。

与之相对的竖厅,也叫直厅。即开间小于进深,客厅是主要采光面。大户型或小户型,都可以采用竖厅设计。在南京楼市,竖厅也是最为常见的设计。
横厅之于豪宅,之于大户型到底有多重要?举个例子:在二线城市排名靠后的河南省会郑州,当地的高端改善圈层长期流传着一句经典台词:“没有6米以上开间,你都不好意思谈改善。没有7-10米以上的横厅,还谈什么奢阔人生?”

曾几何时,6米,已被视为是大横厅的一个标志性符号,更是区别于传统竖厅的一个临界点。相较于竖厅最多只能做到4米多一点的“小开间”,将采光面、景观面、仪式感和尊贵感几乎做到优质的大横厅少则开间六七米,多则长达十几米以上。
“近年,在国内很多城市,大横厅已经被看作是改善大户型的标配。更是区分当地豪宅与普遍住宅之间的一道分水岭,是奢居型产品的代言人”。
随便举几个比较“亲民”的项目,比如南昌老城区的联发君澜,6.9米超宽横厅设计,比常规竖厅宽出2.5米,其通风、采光、视野均上升20%。

位于成都“外围郊区”—龙泉驿区的华润云庭,空中跃层产品采用了让人惊叹的7.2米大横厅设计,均价仅为8800-9400元/㎡。

再来看看户型超大的二线顶豪代表,比如:郑州东三环外的“网红盘”瀚海晴宇。

760平米户型拥有21.5米的超长横厅,包括客厅、餐厅和西厨吧台区,可谓壕出天际。


在这个超级大横厅的外侧,连着面积惊人的空中泳池和花园,这让其吸睛无数。3.5高容积率和非核心地段都阻挡不了它成为郑州先进豪宅的节奏。

值得一提的是,2017年GDP未破万亿,落后南京6个身位的郑州,其高端改善市场对大横厅似乎有特别的偏爱。截至目前,郑州楼市拥有“大横厅”产品的楼盘就有30多个。
就连二线城市的大户型产品都如此偏爱横厅,单价动辄十多万的一线豪宅就更不甘落后了。在上海,绿地黄浦滨江就连最小的93平米户型都要做成横厅,让人情何以堪?

当然,为了尽量收纳最奢阔的横向观江视野,绿地黄浦滨江也付出了“代价”,那就是“牺牲”掉一个卧室。
拿掉一个次卧,换来却是更佳的视野,更优质的尺度。对于这笔账,精明的上海人觉得挺值。但“大萝卜”式的南京人却大多表示无法接受。

“90多平才做成1房,120平做成2房,白白少一个房间不幸福!性价比太低了!”
“什么?你跟我说横厅?这横厅能当饭吃吗?再说,站在阳台上不是一样看风景吗?”
难怪有人调侃,在别的城市,豪宅的业主们都是躺在沙发上看风景。而在南京,高净值业主只能“躺沙发上看电视”。因为,南京豪宅大多都是沙发抵墙的竖厅设计嘛。
那么,南京人对“奢居生活”的理解,到底是什么样的呢?
二
“横”行虽无忌,也要看地域。
并非南京许久不见大世面。至少在过去十多年,为了大面宽的横厅去牺牲一个卧室,这样的布局并不很受南京市场的认可。
客观上,横厅和竖厅之争,确实各有利弊。在你房叔看来,无非就看买房人选择哪种取舍。
横厅优点:
1、横厅设计减少了纯过道空间,提高了户型的使用率。竖厅虽然也能做到方正,但户型面积比较大时,就容易产生过道,造成面积浪费。
2、横厅的时尚感更强。在后期装修设计时有更好的发挥空间,装修样式多,整体更大气,更有空间感。
3、横厅面宽>进深,拥有更大的采光面和更好的通风效果。竖厅的户型如果纯朝南,不能做到南北通透,那么距离窗户远的餐厅,就会存在采光差的问题。
横厅缺点:
1、客厅的沙发不能靠着墙,不符合大多数中国人的习惯。
2、把餐厅桌椅和客厅沙发横向摆在一起,局部看起来比较拥挤,尤其是小户型。
竖厅优点:
1、各个功能分区有明显的界线,能够做到动静分区。房间与客厅有走廊相连,可以保证互不干扰,保护了起居室的私密性。
2、户型的动线设置合理,符合大多数国人的生活习惯。
3、沙发可以很舒适的放在靠墙的位置上,这是很多人习惯的摆放方式。
竖厅缺点:
1、面宽<进深,采光面比较小,如果户型做不到南北通透,采光就存在问题。
2、过道会占用一定的面积,导致实际使用面积较小。
通过横竖厅的全方位对比,我们不难得出一个结论:“户型面积越大,其实越适合做横厅”。
因为,对于动辄大户型、甚至是超大户型的平层豪宅来说,它承载的功能早已超越一般居住的范畴,而是一站式涵盖家庭聚会、圈层社交、私密娱乐等多重属性。一句话,不仅要能住,而且还要住的爽。
“人生得意须尽宽”。在这种优质产品主义的逻辑下,大平层一定是越宽越好。换言之,它从诞生那刻起,设计师要做的排名前列核心要义就是:“尽情去挥霍面积”。

以超大横厅为代表,各种前厅(代替玄关)、边厅(利用拐角)、过厅(代替过道)、主仆分道分梯、270度环幕、天幕露台设计,甚至还有划分得更细致的:红酒区、游戏区、棋牌区、影碟收藏室、party房、化妆间、空中泳池等,都是为了打造比传统住宅更全面、更优质的先进居住体验。
说到底,有多少个卧室其实已不再重要。横厅出现的本质,就是较大化满足高净值人群对于豪宅必备的三个需求:“仪式感、尊贵感、奢华感”。
事实上,南京的高端改善产品乃至部分豪宅也曾经想过做大横厅,但因种种原因不得不向市场低头,妥协。

比如,曾经的“城东排名前列盘”京奥港未来墅。继131平米户型“两房变三房”后,后期入市的141平米户型也被迫取消了大横厅,由此“吐出”了一个房间,变成四房。

开发商忍痛砍掉横厅的做法,显然是为了迎合南京尤其麒麟当地改善人群的喜好。但从另一个角度来看,却能够较好地利于项目完成去化,买卖双方“皆大欢喜”。
比如,城中豪宅中航金城1号,曾透露“想做大横厅”,最终因怕“水土不服”而放弃。但我们依然在它的180平米户型上看到“横厅被取消”的影子。

事实上,对于180平米的大户型来说,客厅开间仅有4.5米显得有点小气,如果打通隔壁客卧约3.5米的开间,即可形成8米左右的超大面宽。整个户型的仪式感也会大大增强。
至于仁恒江湾天成251平米户型,明显也预留了大横厅的格局空间。但遗憾的是,最后仍然切割为一个带有暗卫的客卧,没有实现江湾横厅之梦。

无论承认与否,在大横厅创造的优质仪式感面前,南京很多豪宅的脸上其实都写着一个大大的“怯”字。多年来一直是想爱不敢爱,想碰不敢碰。即便是走上神坛的仁恒,也显得谨慎小心,唯恐“因少一个房间”而遭人诟病。
展望未来,南京的大横厅时代真的会来吗?
三
大横厅,是萦绕南京楼市多年的阿喀琉斯之踵。
直到今天,南京豪宅们开始普及8K-1W的精装标准,一梯一户的私密尊贵,动辄嚷嚷着配置全屋德系家电。但如果这些都做到了,他们还不能勇敢地采用大横厅设计,那只能说是一种悲哀。
鲜为人知的是,早在三年前,南京城中就已经悄悄出现了接近6.5米的大横厅。“吃螃蟹”的是一家位于大光路的港资豪宅项目(雅颂居)。

不过,由于横厅在当时的南京楼市还属于“非主流”,惊鸿一瞥后就很快被“主流”的竖厅豪宅们淹没。于是它继续沉默,继续等待价值能被慢慢认可。
直到今年夏天,“非主流”的大横厅才开始越来越受到南京高端改善市场的关注。据不完全统计,南京楼市已知拥有横厅设计的平层豪宅项目共有7家,分别为:金陵雅颂居,雅居乐滨江北纬天幕,葛洲坝中国府,河西金茂府,世茂天誉,中冶锦绣公馆,万国府。
其中,相对较早规划、开发的雅居乐滨江北纬天幕,680平米户型的横厅面宽达到10米级,可俯瞰无敌江景。至今都稳居南京“排名前列瞰江楼王”宝座。

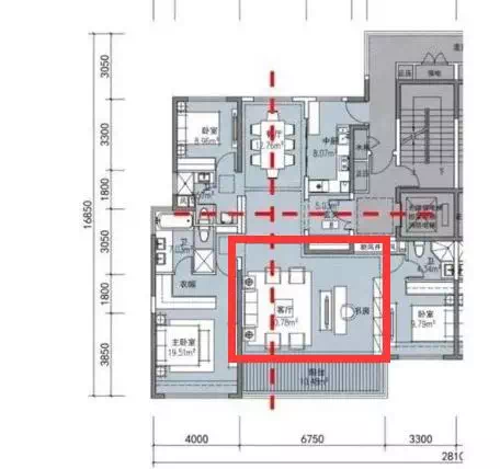
而耗资1个亿打造售楼处的河西中部“网红盘”—世茂天誉在上个月刚刚公开了两款200平米以上大户型,全部采用横厅布置。拟精装修交付,放风价6万。
下图为天誉215平米户型(东边户),东侧阳台打通交付。客厅开间将近8米,加上书房后的总面宽可达到10米以上。

再看下天誉210平米户型(中间户),南侧阳台打通交付。客厅开间将近5米,加上书房后的总面宽可达7-8米。


需要注意的是,天誉户型的横厅都带有一个可分合式的书房。如果业主想将横厅的尺度延伸至较大,那么就必须打通书房形成一个整体空间。

这也就意味着,天誉200多平大户型在特定条件下“只能”做成三房,简直不能再奢侈!
此外,即将入市的中冶锦绣公馆,242平米户型的横厅面宽据称也接近6米,成为鼓楼滨江近期到访人气最火爆的网红样板房。


为了超大尺度的横厅视野,牺牲一定的房间数量。这在南京高端改善市场乃至顶豪中慢慢被接受:据悉,河西金茂府180平米户型,为了引入横厅只能做成三房。堪称是勇气可嘉,哪怕不惜一切代价,只为跻身为数不多的南京大横厅天团。

至于更加顶豪的葛洲坝中国府,应该是南京排名前列家做到“全横厅化”设计的超级大平层项目。据坊间流传的概念户型图显示,该盘无论边户,还是中间户,从190平米至500平米全部采用横厅布置。


其中,中国府380平米四房、460平米五房、500平米五房的顶层单位均拥有空中花园+无边际游泳池,以及或将创下纪录的(或为12-18米?)大横厅。

结语:因为大“室”所趋,所以“横”行无忌?
如果不是世茂、中冶等盘在8月的“集体出柜”,被视为高端改善产品标配的大横厅,恐怕依然没有足够的机会,能在南京市场引吭发声,比较体面的走上台前。
大多数人仰望,少数人拥有。最早起源欧洲教堂建筑的大横厅,20世纪60年代被港式豪宅消化改良,后流传至内地。如今,“大横厅设计”虽然代言了国内人居的较高品质与舒适度,但在“宇宙中心”南京,却一直是被长期忽略的价值点,甚至是一个很大的产品痛点。
回首过去的十年,南京楼市整体以刚需、刚改为主,并且户型集中在150平米以下,很少出现超大面积的户型。人们对房子的要求首先是“实用”,其次才是“调性”。
近年,随着南京房价的水涨船高,价格成为重要的衡量标杆。楼市两极分化的趋势会越来越明显:户型要么越做越精,以满足刚需、投资的需求;要么就是越做越大,以满足高端改善、终极置业的需求。
而一个足够让人震撼的大横厅,意味着载体必须是160平米以上的改善户型,具有更大的面宽、更大的视野收纳,更意味着户型的终极改善和居住舒适度的提高。随着南京高净值人群的生活习惯和居住理念提升,大横厅在南京的命运,或将有望迎来一个历史性的转折。
从不被接受,到开始慢慢接受。今天,当我们回过头再看那些壕出天际的大横厅,除了仰首手可摘星辰,俯瞰灯火阑珊处的吸纳天地景观。更重要的,是俯仰之间的仪式感。毕竟仪式感,是南京豪宅应该长期正视的一个词。只有具备了强烈的仪式感,才能有真正懂它的人。
声明:本文由入驻焦点开放平台的作者撰写,除焦点官方账号外,观点仅代表作者本人,不代表焦点立场。


