在河西,一个被反复“复制粘贴”的200㎡户型
扫描到手机,新闻随时看
扫一扫,用手机看文章
更加方便分享给朋友
南京楼市诞生了一个新的名词——「墅厅大平层」。
今天河西滨江的中海G53发布了最新的项目视频,公开了期待值最高的挑空户型效果图。
约6.6米的墅厅大平层,视觉效果还是挺震撼的↓↓↓
今年最被市场所期待的河西的两个豪宅,无非就是金陵月华和中海G53,两个在户型方面都做了创新,大家对两家的样板间期待值也很高。
两个项目的户型分布大致如下:
金陵月华共552套,其中
205、240、270、316㎡平层(每种户型都在120套左右)
395㎡挑空户型(76套)
610㎡顶复(4套)
中海G53共432套,其中
200、260、280㎡平层
270㎡、300㎡挑空户型(每种都在40套左右)
385㎡复式(22套)
目前这两个项目的户型图只能在各自置业顾问手里看到,并且不能外传,但看房哥都去看过了,手里也有两个项目的网传户型图(仅供参考)。
不过今天我们的重点不是挑空户型,而是两个项目的起步户型,也是看房哥预估客户相对较多的户型(毕竟价格在那,太贵的购买力也不够啊)。
金陵月华的起步户型是205平,中海G53起步是200平,而且户型占比是最大的,看房哥根据户型分布估算了一下,中海大概有160套左右,金陵月华稍微少一点,在112套左右。
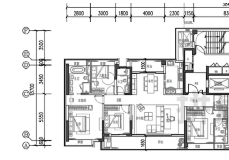
这是中海200㎡户型图(仅供参考)
这是金陵月华205㎡户型图(仅供参考)

两个都是四室两厅三卫的设计,对比之下可以发现,客厅、卧室、卫生间,甚至连玄关衣帽间的布局都相同。
唯一不同的是两家的餐厨位置,中海的餐厅面积要大一些,北向生活阳台和厨房是平齐的,生活阳台面积虽然不大,但是两面采光,拥有270度景观视野,同时厨房是横向布局,窗户要大一些。
而金陵月华的厨房是纵向布局的,窗户明显比中海小,但是生活阳台的面宽更大,这样一来保证了餐厅的采光,客厅也更加通透。
两者各有优势,但总体相差不大。
其实,这两年河西这个面积段的户型没有太大的变化,基本都是在中宁府198㎡户型上做修改。
四开间朝南,大四房、双套房设计,南北双阳台......大致格局相同,唯一的缺憾是入户没有衣帽间/储藏室。

后来,全小区只做一个户型的源尚丹若也把面积段放在了198㎡,这个户型确实兼具实用性和尺度感的,几乎也是现在河西千万级大平层的门槛。
在中宁府的基础上,源尚丹若在入户处增加了储藏室空间,并且做了双阳台增加采光面,但舍弃了北向的阳台,改为了飘窗。
不过源尚丹若在卧室做了创新,子女房涵盖分区,增加一面墙却给予孩子成长中充分的仪式感。
而此次金陵月华和中海这个面积段的产品,结合了前面两家的优势的同时,把工夫放在了餐厨及北向阳台,既保证了阳台的实用性,也能兼具厨房和餐厅的采光。
其实两个项目的挑空户型竞争力不大,因为中海这个产品的主力面积段是270、300㎡,而金陵月华要到395㎡,总价段位完全不一样,客群肯定也不一样,反而是两个项目200多的平层户型竞争更大。
根据看房哥从置业顾问处得到的消息,金陵月华预计要在中海之前上市。
金陵月华预计最快4月底,也可能是5月初公开实景示范区,最快5月底首开,昨天看房哥也实探了项目的建设进度,目前售楼处还在框架阶段,3、4、5号楼已经起来了。
中海G53预计5月底公开售楼处和样板间,计划6月底首开入市。售楼处的进度要比金陵月华快一点,目前只有5号楼进度比较快。
更多关于金陵月华的产品细节可以点击回顾【连车库都做了下沉庭院!绿博园瞰江楼栋天团来了,超多细节曝光!】
更多关于中海G53的产品细节可以点击回顾【河西滨江猛将!中海颠覆性豪宅,户型首曝!】
两个项目你更期待哪一个?欢迎在评论区留下你的看法。
声明:本文由入驻焦点开放平台的作者撰写,除焦点官方账号外,观点仅代表作者本人,不代表焦点立场。


