官方最新发布!江北4所中小学规划曝光!新区新添1所一中分校
扫描到手机,新闻随时看
扫一扫,用手机看文章
更加方便分享给朋友
最近,六合龙袍新城2所中学最新规划曝光
此外近日江北新区 惠泽路小学新建工程项目、 南京市第一中学江北新区分校胡桥路校区工程项目发布批前公示,一起来看看吧!
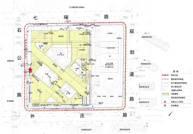
1. 南京市第一中学江北新区分校胡桥路校区工程
项目概况
项目 位于南京江北新区顶山街道,用地西侧为石公路,东侧为规划道路,南侧为外庄路,北侧为七瑶路。规划用地性质为初中用地,用地面积约39646.47平方米,容积率≤1.0,绿地率≥35%,建筑高度≤24米。拟建总建筑面积约4.7万平方米,其中地上建筑面积约3.5万平方米,地下建筑面积约1.2万平方米。主要包括教学、办公、图书阅览、食堂、报告厅、游泳馆、风雨操场等功能。
▲项目区位图
2.惠泽路小学新建工程
项目概况
项目位于南京江北新区,和旭路以东,万和路以西,惠泽路以北。小学规划用地性质为A33a用地,用地面积约37272.85平方米,容积率≤1.0,绿地率≥35%,建筑高度≤24米,拟建总建筑面积约4.44万平方米,其中地上建筑面积约3.65万平方米,地下建筑面积约0.78万平方米,主要建设内容为普通教学楼、专业教学楼、图书馆、报告厅、风雨操场等教学用房。
▲项目区位图
▲总平面示意图
效果示意图
来源|由南京江北生活圈整理发布
声明:本文由入驻焦点开放平台的作者撰写,除焦点官方账号外,观点仅代表作者本人,不代表焦点立场。


