超级总部聚集!抄底河西CBD地标群的机会来了!
扫描到手机,新闻随时看
扫一扫,用手机看文章
更加方便分享给朋友
日前,南京官宣《河西新城开发建设“十四五”规划》,直接定下河西下一个五年发展目标!
规划明确河西新城在“十四五”时期的“一个定位”、强化“两大支撑”、打造“六大高地”的发展目标体系。
“一个定位”:即建成高质量发展、高品质生活、高能级辐射、高效能治理的现代化国际性城市中心。
“两大支撑”:以创新名城金融中心功能的核心承载区打造提升东部金融中心地位、以美丽古都现代滨江形象的集中展示区打造提升城市形象。
“六大高地”:东部地区重要金融中心核心承载地、长三角知名的超级总部经济集聚地、都市圈公认的宜居宜业城市优选地、极具活力的国际性消费旅游目的地、长江经济带绿色可持续发展示范地、面向未来的智能现代化城市样本地。
写字楼林立的河西,不管是现在还是未来,都必将是南京金融聚集区,数以万计的年轻人、白领在这里打拼,那么如果给你一个可以选择的机会,你愿意在什么样的写字楼里上班?
占据了河西CBD黄金地段的ICC河西国际环球中心,给出了标准答案。
01
工作压力如此大,能在办公时可拥有一个丰富便利的生活,其实在一定程度上可以增加工作的幸福感。
深谙其中的道理,不少企业在选择写字楼时,更多的是将目光锁定在了交通便捷、自带优质商圈的优质写字楼。
ICC河西国际环球中心就位于青奥轴线与CBD轴线交汇处,江东中路是整个河西CBD最重要的行政道路,贯穿中央行政区、中央商务区、中央生活区,金融区。拥有油坊桥立交枢纽、江山大街、江东中路、长江五桥等多重出行选择,从项目出发,开车约20分钟可达南京南站,约35分钟可达禄口国际机场,约10分钟上长江五桥……
项目周边还有4条地铁+2条有轨电车:项目距S3号线永初路站约500米、距2号线雨润大街站约1000米、 距10号线元通站约1500米、 7号线永初路站(在建中),项目周边还有有轨电车1号线以及规划的有轨电车2号线。

项目区位图
除了便利的交通,河西CBD已经成为华东地区第二大中央商务区,仅次于上海陆家嘴金融贸易区。十四五期间,河西新城还将引进2家世界500强投资企业数量、3个企业/区域总部机构、3栋新建总部楼宇,并且还将出让29块土地,总面积达到42.3公顷。

河西新城目前累计集聚金融类机构超900家,其中金融法人总部16家,省级以上总部131家,备案基金管理机构105家,管理基金规模1090.72亿元,所有指标均居全市排名前列。
“在这里办公,不仅仅是方便,其实更多的是看中这里多业态的产业聚集,能够提升我们企业的发展半径,现在的社会掌握一手信息就是抢占市场。”ICC河西国际环球中心的一位准业主如是说道。
对河西CBD写字楼感兴趣的朋友可以咨询置业顾问钱嘉君
距离ICC河西国际环球中心100米有阿里巴巴江苏总部、 金融城,500米内聚集小米科技华东总部、京东集团区域总部、苏酒集团总部、58集团华东区域总部等等超级总部。

项目北边一路之隔的金融城分为三期开发,规划办公人群约20-30万。从项目到金融城三期,中间设有过街天桥,可快速到达金融城的甲写集群,让企业的沟通、合作更近一步。
金融城一期目前已有20余家金融总部进驻,金融城二期目前邮政银行江苏省分行、民生银行南京分行、江苏交通控股集团、江苏苏豪集团金融板块4家金融总部已签约。

02
ICC河西国际环球中心矗立于约110万方商务综合体之上,这座“天际轮廓线”约200米超甲级写字楼,由美国SWA、SOM、PCPA以及香港DLN四大国际设计大师联袂打造,是河西又一地标之作。

项目总建面约18万方,由2栋超高甲写,3栋多层写字楼和裙楼底商组成。外立面采用中空Low-E玻璃幕墙,以其挺拔、俊朗的高度,屹立于CBD商务区,演绎全新商务形象。
效果图
约9.6米挑高办公大堂、分户控制的VRV恒温空调系统、智能化管理系统、18部国际品牌电梯、设置逾7000个地下车位……一切硬件配套都以高标准打造。




同时ICC河西国际环球中心二期规划有约2万方时尚消费街区,并将由知名商业运营团队运营,后期将引入中西餐饮、音乐餐吧、商务咖啡、健身运动、24小时便利店等众多业态,方便上班族的生活。
此外项目还自带约3万方海德公园,以及周边汇集河西城市生态湿地公园、青奥体育公园、鱼嘴滨江湿地公园三大生态公园,环境宜人。
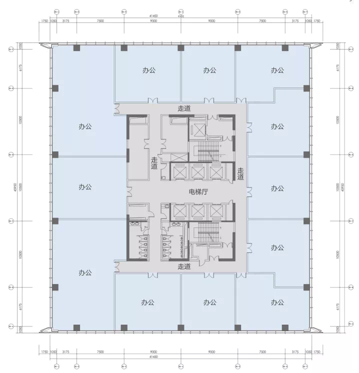
项目目前在售的是二期200米超高5A甲级写字楼,层高44层,标准层面积约1900㎡,层高约4.2米。感兴趣的朋友可以咨询置业顾问钱嘉君B1标准层平层图中低区平面图:

B1标准层平层图高区平面图:

而且未来随着河西进一步的发展,区域内办公物业的价格、租金势必也会水涨船高,抄底宇宙中心的甲写,正当时!

声明:本文由入驻焦点开放平台的作者撰写,除焦点官方账号外,观点仅代表作者本人,不代表焦点立场。


