南京航空航天大学落址江北新区研创园!
扫描到手机,新闻随时看
扫一扫,用手机看文章
更加方便分享给朋友
南京航空航天大学江北新区国际校区规划设计方案公示!


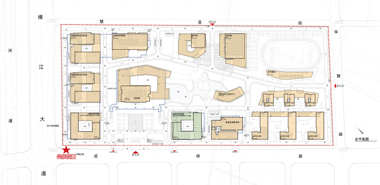
校区占地26.59 万平米,位于江北新区顶山街道产业技术研创园内,南至华慧路、北至横江大道,校区东侧为雅居乐汇港城。总建筑面积约 38.48 万平方米,其中: 地上建筑面积约 32.34 万平方米;地下建筑面积约 6.14 万平方米。

主要建设内容包括综合楼、教学科研楼、国际联合实验室、食堂及保障用房、学生公寓、地下车库等。
包含江北新区国际校区规划落地,南航现有明故宫校区、将军路校区、天目湖校区共4个校区,将实现“一校两地四区”的办学格局。


据传早在2018年8月,江北新区就与南航签署了共同推进国际校区建设的框架合作协议。并于2022年6月22日,整体规划方案招标完成。根据招标公告信息透露,项目总服务期1800天,校区预计2028年建成。
目前项目所在研创园板块内,有天悦风华,世茂璀璨江山,金陵星图,越江时 代等新房。详情微信搜索pfdmf025获取更多板块内楼盘信息。
声明:本文由入驻焦点开放平台的作者撰写,除焦点官方账号外,观点仅代表作者本人,不代表焦点立场。


