好消息,南京这里新增2家医院!
扫描到手机,新闻随时看
扫一扫,用手机看文章
更加方便分享给朋友
01
南京市江宁老年医院
项目规划设计方案

01
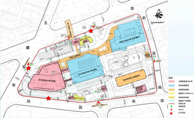
项目位置
位于东山街道鼓山路以南、玉堂巷以东,现状江宁医院(鼓山路院区)西侧。

02
项目概况
规划用地面积约47.6亩,规划用地性质为医院用地,容积率≤3.0,建筑密度≤40%,绿地率≥30%,建筑高度≤60m。

本次拟新建一栋老年医院综合楼及相关配套设施,远期规划一栋教学科研楼,预留与北侧社会停车场的连接通道,并拟对现状建筑进行立面出新改造。本次拟新建总建筑面积约6.79万平方米。

02
秣陵街道社区卫生服务中心
改扩建项目规划设计方案


01
项目位置
位于秣陵街道秣欣路以东、秣龙路以北。

02
项目概况
总用地面积10732.26平方米,规划用地性质为医疗卫生用地,相关经济技术控制指标:容积率≤1.2,建筑高度≤24 (m) ,建筑密度≤40%,绿地率≥30%。

03
建筑面积
现拟拆除西侧门诊楼,原址新建门急诊综合楼,其它现状建筑保留并改造出新。项目总建筑面积约1.31万平方米,地上建筑面积约1.04万平方米(新建建筑地上建筑面积约0.48万平方米),新建地下建筑面积约0.27万平方米。

来源江宁发布
声明:本文由入驻焦点开放平台的作者撰写,除焦点官方账号外,观点仅代表作者本人,不代表焦点立场。


