仅44套!上有露台下有花园,江北这个低密叠墅已成限定!
扫描到手机,新闻随时看
扫一扫,用手机看文章
更加方便分享给朋友
南京疫情的再次爆发,让不少人也再一次意识到一个健康舒适的居住环境是多么的重要,低密的社区更能保护全家人的安全,有天有地的院子和露台,也能丰富大家的居家生活,对于空间尺度的需求也更大,可以跑上跑下,一大家子居住也并不拥挤,而叠墅恰好能满足大多数人的要求。相对于别墅等产品来说,叠墅的价格门槛更亲民,能为大部分人所接受,对比洋房等产品居住空间也更大,更舒适。但随着管控政策越来越严,在以后的市场上能买叠墅的机会也越来越少。
5月25日,南京市规划和自然资源局发布了《南京市规划资源局低多层居住建筑项目规划管理规则》。其中明确规定:
严禁审批独栋、双拼和联排户型;严禁将低多层居住建筑户型潜伏设计或变相设计成“别墅”;低多层居住建筑核准图中不得出现“别墅”“叠墅”和“空中别墅”等标注。这意味着,目前市面上在售、已经获得审批的双拼、联排、叠墅等房源,将成为最后一批。

从限墅令到禁墅令,没有最严,只有更严!南京也不例外,从土拍就能看出来,低密产品的用地是越来越少,但在各类类墅产品中,不少地产圈内人士坚信,叠墅将成为城市高端人群的主流居住方式。原因不外乎其二:叠墅几乎是土地容积率标准与低密人居梦想的“较大公约数”。叠墅总价可控,上中产家庭有机会够得着。
随着国势的不断上升,中产阶级人数不断增长,是未来改善的主流需求。因此,近几年来,叠墅产品受到了市场的高度热捧。但相较于“6-8 层伪叠墅”,4层真叠墅,更具备收藏价值:上叠顶层可以打造露台或空中花园,下叠有丰富的“地下娱乐城”和推门即见的花园,楼上楼下、有天有地,生活幸福感超高。可惜的是南京市场上的4层真叠墅实在太稀缺,因此,当占据稀缺老山山景资源,拥有50-200平的花园、
18-27平的露台,上叠还配备地下室的4层真叠墅产品面市后,就吸引了全南京的资产保卫者、改善族纷至沓来。这个项目就是金隅紫京叠院。

PART.02金隅紫京叠院坐落于老山脚下,项目打造了洋房、叠墅、双拼退台别墅等全系改善型产品,目前在售的基本上都为准现房,此前一期已经交付,二期预计将在今年年底交付,买房很快就能交房,而且小区内大部分实景已经呈现,所见即所得。

所以大家目前都是能直接看到未来交付的实景的,据很多看过房的朋友表示,项目的品质非常令人惊艳。

据了解,项目由李嘉诚御用设计师的梁景华与台湾“空间魔术师”史南桥联手打造,以“叠山理水”的造园手法,由北向南引入老山自然溪流,结合高低台势差,自西向东打造近2500㎡园林水系,景观园林1.6的低密容积率,超10000㎡核心景观区面积,可以较大程度的展现四时之景。

社区内部,项目精心打造了“紫京十景”——冠云落影、黄龙吐翠、芳洲叠溪、平流观澜、水岸春暖、叠院烟雨、桃溪九曲、玉樽邀月、岭道寻香、诗巷花韵……匠造新亚洲风格园林。

其中项目的四层真叠墅产品性价比尤其高,此前项目已领叠墅7、15、17号楼房源销许,销许均价约30000元/㎡,毛坯交付,仅44套!目前在售建面约210-300㎡两叠真墅,总价680万/套起。
想买的朋友赶紧联系置业顾问刘心怡

相比市面上普遍的叠墅产品,金隅的叠墅是独树一帜的存在。他是全南京少有在售4层真叠墅,区别于市面上6-7层伪叠墅,产品稀缺,同时也是全江北少有6.7米挑高空间, 尺度大,空间阔绰,居住舒适度强。
而且上叠、下叠皆可独立连接地下车库,私密入户,独立归家,与此同时,巧妙利用地势打造,地下室、车库等传统地下空间高于正常地面,无其他项目出现的返潮、阴暗等现象。
产品的顶部为坡面设计,凸显新中式院落风格,同时其隔热、防水等功能要明显优于平顶,解除后期维修烦恼。

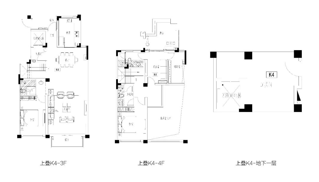
首先来看256平的上叠户型,打造四卧四卫,所有卧室皆可作为套房设计,市面少有,包括一部私家电梯,独享使用便利。地下室、电梯门厅双玄关设计,入户仪式感更强,值得一提的是,上叠户型少有配备地下室,可独立连接地下车库,同时扩充功能间,满足生活娱乐需求。而且上叠还带约18㎡私家露台,边户达27㎡,性价比超高。

上叠K4户型图


上叠样板间




下叠K1户型为251平,地上面积可做标准5房,且最小面积约15㎡(等同于1楼父母房),而且层层皆设立洗手间,减少生活动线,避免上下楼烦恼,地下室单独双功能空间,满足储藏收纳、生活娱乐双需求。南向花园阳光入户,享受私家别墅的居住体验,带有50-200㎡花园,主力花园面积在50㎡,方便使用与打理。

下叠K3户型图


下叠样板间




此外,项目目前还有在售二期天境组团瞰山大平层,户型建筑面积约144-170㎡,精装准现房,均价约3万/㎡。即将加推二期大师系列洋房,建筑面积约144-170㎡,精装准现房。在目前的形势下,入手这样一套低密住宅,不仅是对自己生活品质的提升,也是目前为数不多买入稀缺住宅的机会。PART.03于内,金隅紫京叠院是首屈一指的品质改善,于外,对比其他的低密产品,金隅紫京叠院更是标准的城市居所。
项目位于江北老山板块,紧靠江北核心区,半径5公里内繁华生活圈,满足生活所有需求。
前不久,江北一条全新的地铁——13号线曝光,金隅紫京叠院毗邻地铁13号线(规划中)“凤凰山站”、“沿山大道站”两个站点,直线距离约500-800㎡,该地铁途径老山、江北核心区,下穿长江,连接江南主城,到达南部新城大校场,未来将与主城无缝对接。

而目前项目周边的生活配套也已经非常成熟,项目距离去年开业的白马生活广场大约1.5公里,距离项目5公里范围内,12大商业体聚集,近百万方商业配套,后期约10万方的商业购物中心建成后,距离项目仅3公里左右距离。

教育方面,不久前,金隅地产代建幼儿园已正式落定为“浦口区实验幼儿园第二分园”,将采用原班师资团队,今年9月开园,此外旁边还有南京审计大学、南京市浦口区实验学校、江浦高级中学、浦口区第三中学等等,教育资源丰富。
项目3公里范围内,已经运营的有浦口区中医院与浦口区中心医院,另外项目北侧约4公里处是鼓楼医院江北分院,现已试运营,医疗配套也很完善。
这样离尘不离城的环境和生活配套,加上如此稀缺及高品质的“两叠真墅”,实在是不容错过,据悉项目此次加推的叠墅产品仅44套,只有少数人才能拥有!
感兴趣的朋友可以进入拼房帝小程序查看项目更多信息,或者直接可以联系置业顾问刘心怡线上看房哦。
声明:本文由入驻焦点开放平台的作者撰写,除焦点官方账号外,观点仅代表作者本人,不代表焦点立场。


