南向面宽超20米,超强采光!河西南奥体建设198㎡户型图曝光!
扫描到手机,新闻随时看
扫一扫,用手机看文章
更加方便分享给朋友
刚刚,我们拿到了河西南奥体建设G72项目建面约198㎡户型图!此外,项目一大波信息和效果图也同步曝光!一起先睹为快!

奥体建设G72规划4栋31F高层,共计248套。主力户型建面约198㎡(8套变异户型:建筑面积约165㎡),带有超1800㎡会所,预计总价千万级,有望下半年上市。
从项目公开信息看,改善属性拉满:
1、4栋建筑围合式布局,拥有大面积中央景观

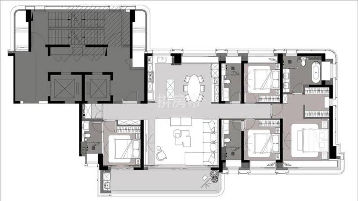
2、建面约198㎡4室2厅4卫,纯粹改善户型
项目主力户型仅198㎡一种,两梯两户,类独立门厅,互不打扰,私密性强。
4室2厅4卫设计,奢侈的打造了4个套房,四卫全明,定位高端改善客群。
LDKB一体化布局,约6.2米超大横厅,空间感十足,中西双厨设计,带有西厨岛台和独立餐厅空间。
南向约9.45米跑道观景大阳台,带有270°弧形转角设计,采光、通透性绝佳。
南向四开间设计,采光面超20米,全系飘窗,即便是卫生间也带有飘窗。
主卧超36㎡,带有270°转角飘窗、独立衣帽间和卫生间,主卫带有双台盆、浴缸,居住舒适度拉满。
3、酒店式入户大堂,仪式感十足
酒店式大堂设计,地上挑高入户大堂层高超6米,气度非凡。
4、公建化外立面,窗墙比较高
外立面以大面积玻璃窗+铝板+金属格栅为主,融合阳台圆角设计,颜值在线。
目前,河西南200㎡左右的面积段还有中宁府、建发缦云以及河西南G03可选。
中宁府
据置业顾问透露,中宁府预计将于今天领取销许,明天开始报名,报名时间仅1天。
项目拟建8栋26-29F三恒两静一智能的高层科技住宅约433套,并采用围合式布局,内部打造约3.5万方的中央景观、“1+N”专属高定会所,配置约2600㎡中央会所+6个泛会所(共900㎡)。主力户型建面约198㎡、248㎡、258㎡、298㎡,顶层有18套400-500㎡大平层,放风价7.3万/㎡。
建面约198㎡4室2厅3卫户型
建发缦云
建发缦云首开204套房,共吸引339组买房人报名,综合中签率仅约60%。
项目拟建9栋17层小高层,总共475套,主力建面约123㎡三房、143㎡四房和182㎡四房,首开均价约5.49万/㎡。

建面约182㎡4室2厅3卫户型
河西南G03
伟星河西南G03预计打造6栋24F住宅,主力户型约238、308㎡两种,项目采用围合式布局,楼间距宽敞,并配有下沉式会所,打造中央景观花园,并将建造人工湖泊。

建面约238㎡4房2厅3卫户型(网传)

声明:本文由入驻焦点开放平台的作者撰写,除焦点官方账号外,观点仅代表作者本人,不代表焦点立场。


