270°景观大阳台!绿城大校场豪宅户型曝光!南京超10家纯新盘马上开!
扫描到手机,新闻随时看
扫一扫,用手机看文章
更加方便分享给朋友
今年的金三银四,注定要格外热闹!
刚刚,大校场纯新盘绿城凤栖潮鸣户型曝光,打造建面约166、215、234㎡三种户型设计,其中,234㎡大平层带有270°超大景观阳台,可尽享秦淮河风光,户型亮点颇多。
此外,据拼房帝最新统计,金三银四南京预计会有13家重磅纯新盘上市,既有河西南、大校场千万级豪宅,也有城南中心、麒麟中央公园等89m²刚需小户型,无论你是300多万还是千万级预算,今年的金三银四都能找到值得买的楼盘。

01
大校场
绿城凤栖潮鸣
规划:1栋17F高层住宅,打造水上花园、摩登花园等沉浸式花园景观。
价格:含包放风价5.2-5.3万元/㎡
动态:预计3月底公开
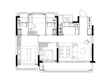
建面约234㎡四房三卫户型
点击查看大图
这个户型为四房设计,户型很赞,项目采用大面积玻璃,采光面很大,尤其是客厅的270°L型超大景观阳台,观景视野极佳,可以一览秦淮河风光;餐客厅一体化设计,带有超大横厅、独立餐厅和休闲吧台,空间奢侈;双开门设计,做了独立入户玄关,很有归家仪式感;主卧套房设计,空间尺度非常奢侈,带有步入式衣帽间和独立卫生间,主卫带有双台盆、浴缸和淋浴间;家政间+储藏室,收纳空间非常充裕。
建面约215㎡五房三卫户型
点击查看大图
这个户型做了3个客厅,除了餐客厅,入户玄关的位置还做了一个过厅,可以打造成钢琴室或藏品展览区,提高了空间利用率;北向大尺度景观阳台+南向独立功能阳台,双阳台设计,观景、采光兼得;5房设计,4房朝南+北向书房,适合家庭成员较多的改善家庭,主卧同样是套房设计,带步入式衣帽间和独卫。
建面约166㎡四房三卫户型
点击查看大图
四叶草布局,一进门就是餐客厅,空间非常开阔;三个卧室各执一角,互不打扰,双套房设计,居住更为舒适。
绿城凤栖潮鸣鸣位于大校场四叶草板块,临近地铁5号线七桥瓮站,附近有七桥瓮湿地公园和郑和外国语学校。
项目体量非常小,只有1栋17F高层,房源仅约60套左右。项目由绿城管理集团代建、操盘,项目主力户型建面约166、215、234㎡,含包价格预计在5.2万㎡左右,总价预计900万起。
从目前的曝光的效果图上看,项目颜值颇高,立面模拟琴键的排布,很有灵动感。
入户大堂采用游艇造型,与立面的层次感相呼应,非常大气。
02
河西南
中能建城发(葛洲坝)G29
规划:8栋26-29F科技住宅,共计433套房源,南京首创1+N会所体系:中央会所(约2600㎡)+6个泛会所(约900㎡)。
价格:不设毛坯限价
动态:预计4月公开
中能建城发(葛洲坝)G29位于河西青奥滨江板块,靠近万科翡翠滨江、滨江ONE、中国府等一种豪宅,周边更是聚集保利大剧院、南京眼、华侨城欢乐滨江、南京儿童医院等优质资源。
项目拟建8栋楼,6栋29F高层住宅和2栋26F高层住宅,主力户型建面约198、248、258、298㎡。
下图是刚刚拿到的项目户型分布:
每一栋楼均为两户设计,除1、4、5、6#楼为建面约248、298㎡两个面积段外,剩余楼栋均只有一种户型分布。其中,198㎡户型分布在7、9#楼;258㎡户型分布在3、10#楼。
从楼栋分布图可以看到,项目呈U字形排列分布,中间为大范围社区景观和水景构造,据悉,景观体量非常大,面积约3.5万方。
外立面颜值颇高,搭配大面积玻璃,约270°环幕瞰景,室内设计由一线豪宅大师唐忠汉操刀。
此前,项目部分户型图已曝光,2大主力户型建面约248、298㎡,未来预计总价1500万起步。
建面约248㎡四室三卫户型

建面约298㎡五室三卫户型

03
燕子矶
规划:10栋28-29层住宅,建面约89-126㎡,带会馆和露天泳池。
价格:毛坯限价32320元/㎡
动态:最快二季度开盘
星叶燕尚玥府是栖霞建设首进燕子矶的项目,项目距离1号线、6号线地铁站、万象汇商业都不远。
项目共有建面约89、120、126㎡三种户型,全系横厅设计,126㎡横厅做到约6.6米,即便是89㎡小户型,也做到了5.3米横厅。
建面约89㎡三房一卫户型
约5.3米横厅设计,南向双开间阳台,三个房间全部带飘窗,这样看来,赠送面积还是比较多的。

建面约120㎡四房两卫户型
这个户型同样是大横厅,双开间阳台设计,整整6个飘窗,甚至两个卫生间也有飘窗。

建面约126㎡四房两卫户型
这个户型约6.6米横厅设计,与大尺度阳台相连,宽敞气派。

04
城南中心
海信彗园
规划:5栋17F小高层,建面约89、107㎡,配置双会所。
价格:毛坯限价32320元/㎡
动态:最快4、5月份开盘
海信慧园位于城南中心板块,与江核青奥板块一路之隔,3万出头的价格吸引了不少刚需全体关注。项目为海信在南京的首子,5栋17F小高层设计,低密住宅,毛坯限价为3.1万/㎡,最快4、5月份公开、上市。
项目89㎡设计了A、B两种户型,其中A户型便是“1.5卫”设计,B户型则为正常单卫户型。
建面约89㎡的三房两厅1.5卫户型(A)
该户型1.5卫(1浴+2厕+1洗漱盆)一亮相就引发了不小关注,两个马桶共用一个洗漱区实用性更强,提高业主生活效率的同时,卫生间也不占用太多空间。

建面约89㎡的三房两厅一卫户型(B)
该户型整体布局与A户型相仿,双阳台设计,边户户型,餐客厅一体化设计,但卫生间是常规的一卫设计。

建面约107㎡的三房两厅两卫户型:
双开间阳台,连通客厅和次卧;餐客一体化设计,动线流畅;主卧套房设计,带飘窗、独立卫浴以及步入式衣帽间,居住舒适。

05
东山
朗诗玲珑新亭
规划:共打造3栋楼17-20层高层,仅148户,不卖装修包,采用朗诗第六款科技系统“健康堡垒”.
价格:不设毛坯限价
动态:最快4月开盘
朗诗玲珑新亭位于江宁东山中心区域,紧邻地铁1号线竹山路站,以及在建的5号线。周边商业有江宁龙湾天街以及在建的竹山路景枫综合体,江宁万达广场等,生活氛围浓厚。
项目预计3月4日公开景枫中心城市展厅,最快4月底首开,一梯一户,打造建面约117、143、167㎡的精装科技住宅。
项目将配置朗诗第六款科技系统健康堡垒,与河西中豪宅璟华府同款,这也是该科技系统首入江宁,全屋智能化设计,精装修配置对标河西,由朗诗负责代建和操盘品,质非常值得期待。

今年金三银四预计会有不少重磅纯新盘上市开盘,无论是刚需还是改善,品质都非常不错,对于买房人来说是个不错的利好,可多多挑选比较,今年有买房计划的朋友可以提前关注起来了!
想要获取纯新盘最新动态的朋友
可以扫码加血拼哥好友,加入买房交流群
免责声明:
1、以上楼盘资料均来自于项目开发商,不作为要约或承诺;
2、相关宣传内容不排除因政府相关规划、规定及开发商未能控制的原因而发生变化,项目开发商保留对宣传资料修改的权利;
3、买卖双方的权利义务以双方签订的相关合同及其补充协议、附件等书面文件为准;
4、本资料对项目或产品的介绍,旨在提供相关信息,不代表着出卖人对此作出要约或承诺,所展示的图片仅仅为效果图、示意图,各项目交付内容以实际情况为准。
声明:本文由入驻焦点开放平台的作者撰写,除焦点官方账号外,观点仅代表作者本人,不代表焦点立场。


