河西中越秀豪宅户型曝光!主卧270°飘窗太摆!
扫描到手机,新闻随时看
扫一扫,用手机看文章
更加方便分享给朋友
国庆期间,越秀河西中G28公布案名:越秀·和樾府,并在华采天地1F公开城市展厅,预计10月中旬公开售楼处、样板间,较快12月首开上市!
南京越秀和樾府是全国第五座和樾府,是越秀较高产品系。项目打造6栋30F科技住宅,并自带会所。

据悉,越秀和樾府售楼处设在河西龙湖天街A座26F,并打造143㎡、175㎡两种户型样板间,其中143㎡还将再设一个装修包交付标准的样板间,以供买房人参考。
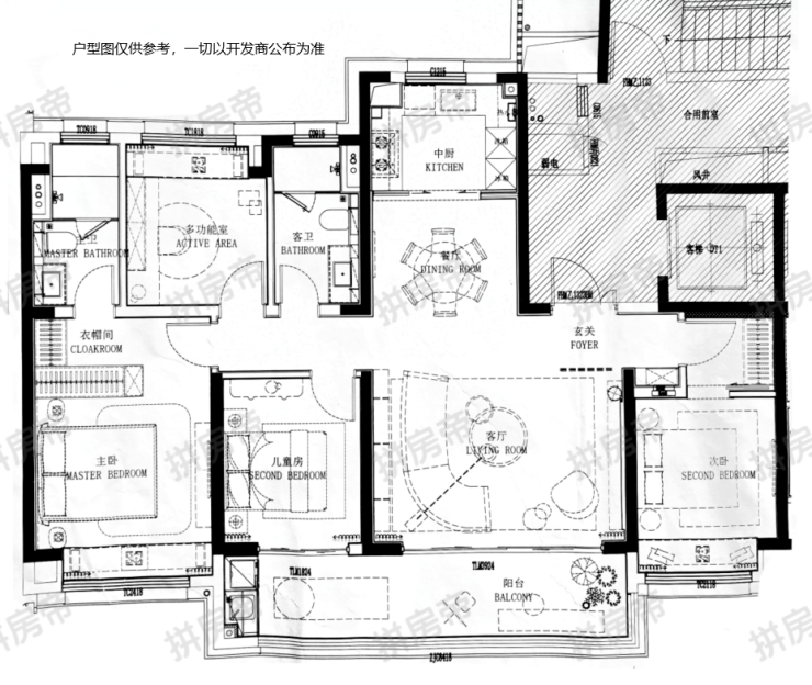
项目主力户型面积143㎡(4房2厅2卫)、175㎡(4房2厅3卫),两梯两户设计,含包放风价6.3万/㎡,总价预计900万起。
刚刚,越秀和樾府143㎡、175㎡户型图疑似曝光!
175㎡户型四房两厅三卫设计,南北通透、四开间朝南,采光通风效果上佳!

起居空间采用厨房+餐厅+客厅+阳台的LDKB一体化设计,宽度约6.2米大横厅+约8.4双开间南向大阳台,堪称奢华!
东西双套房设计,父母房独卫采用南向明卫,这在180㎡以下户型中,实属难得。主卧拥有270°(约4+4米)全视角飘窗,即便在豪宅林立的河西也十分罕见,主卫双台盆+淋浴隔+浴缸设计。
143㎡户型四房两厅两卫设计,南北通透、四开间朝南,餐厨一体化设计,约8米宽南向双阳台+约5.1米大横厅,主卧套房设计。

越秀和樾府距离地铁10号线·中胜站直线距离约400米,经河西大街可通达全城。
项目位于河西新城科技园,周边商业配套丰富且高端。天街旁+元通商圈,靠近龙湖A标级天街,36万方超级综合体,24小时+生活赋能中心,同时享受华采天地、德基、IFC、金奥等商业辐射。

项目东侧在建新城科技园学校(九年一贯制),周边还有南师附中黄山路小学、初中,建邺高级中学,以及南师附中教育集团、金陵中学教育集团、致远外国语等多所学校。(具体学区以交付后教育局划分为准)

声明:本文由入驻焦点开放平台的作者撰写,除焦点官方账号外,观点仅代表作者本人,不代表焦点立场。


