江北新区又一地标封顶!
南京焦点发布 2021-09-17 09:36:25
用手机看
扫描到手机,新闻随时看
扫一扫,用手机看文章
更加方便分享给朋友
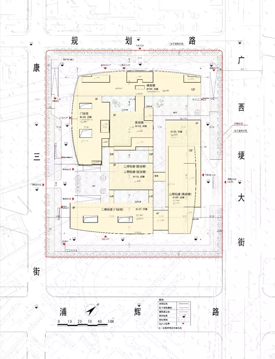
9月16日 国际化名医中心项目主体结构封顶啦 国际化名医中心是江北新区“两城一中心”里基因之城重要的医疗载体,立足江北新区,以国际化中高端医疗服务为核心,以模式创新为突破口,以专科为特色,通过建设统一载体,设立特色共享医疗平台。 2020年3月12日,国际化名医中心通过南京市工程建设项目审批制度改革
9月16日
国际化名医中心项目主体结构封顶啦

国际化名医中心是江北新区“两城一中心”里基因之城重要的医疗载体,立足江北新区,以国际化中高端医疗服务为核心,以模式创新为突破口,以专科为特色,通过建设统一载体,设立特色共享医疗平台。
2020年3月12日,国际化名医中心通过南京市工程建设项目审批制度改革,成为南京市排名前列个“拿地即开工”示范项目。


该项目建成后将提供符合国际标准的综合性共享式的治疗设施、检测设施、护理服务、医疗后勤及物业服务,吸引国内外著名医师或医师团队拎包坐诊,为南京市乃至长三角提供优质预约式医疗服务、助力江北新区大健康生态圈的整体联动发展。


项目自2020年3月12日开工以来,已获得南京市智慧工地、南京市差别化管理工地等荣誉称号,并成功入选南京市装配式示范工程、南京市绿色智慧示范片区工程、省建筑产业现代化示范工程。
来源:南京江北新区中央商务区
声明:本文由入驻焦点开放平台的作者撰写,除焦点官方账号外,观点仅代表作者本人,不代表焦点立场。


